一直以来,纯新盘备受关注。当然,这也不难理解。
一方面,纯新盘的入市,可以为购房者带来更多选择。
另一方面,越来越卷的市场环境下,纯新盘也极可能带来更多惊喜。
那切入正题,近期宜宾又有哪些纯新盘有动作?
8月以来,宜宾主城不乏纯新盘亮相,也不乏纯新盘招兵买马,一起来看看——
01 源海绿城·凤鸣东山
8月2日,源海绿城·凤鸣东山位于万象汇的城市展厅亮相。
项目位于三江新区东山板块(以前大家常说的台地板块),紧邻洗马池公园、洗马池幼儿园/小学、三江新区康养中心、河湾原乡生态园,以及规划的文体中心,位置可圈可点。

↑人工标注,仅供参考
从流出信息看,项目占地约142亩,容积率约2.2,规划约1600户。住宅为高层、小高层,建面约97-189㎡,此前备受关注的合院产品已经取消。

↑过程效果图,仅供参考
项目所在地块土地成交单价5640元/㎡,楼面地价约2564元/㎡;而附近在售的丽雅東山序均价约8500元/㎡,部分特价房单价“7”字头。源海绿城·凤鸣东山之后的售价,应该会参考这些内容。

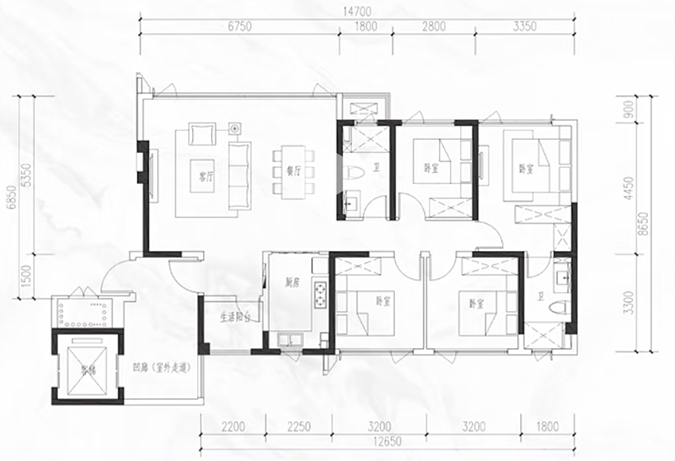
↑建面约128㎡户型
02 远达·桃李书院
8月下旬,远达·桃李书院招兵买马的消息刷屏,看来项目亮相也快了。
项目位于高铁南片区,紧邻市一中叙州校区,以及在建的环一中宜邻中心,地段上同样优势明显。

↑此前航拍,仅供位置参考
项目占地近81亩,容积率2.0,规划住宅约858户,机动车停车位794个。从公示的规划看,楼栋应该是小高层,行列式分布,应该也是板式户型。

↑总平图
至于价格参考,项目所在地块土地成交单价6120元/㎡,楼面地价约3060元/㎡;就近主要有远达·青雲书院、鲁能公馆、雅居乐·叙南雅郡在售,既有单价“7”字头的房源,也有极少数单价上万的。
03 云境·央玺
近日,云境·央玺招兵买马的消息也曝光了,看来项目亮相也快了。
项目位于上江北五粮液大道与敬业路交叉口,距离新街、市五中都比较近。

↑此前航拍,仅供位置参考
项目占地约32亩,容积率2.4,规划住宅为16-17层的小高层。从公示的总平图看,户型应该也是板式结构。

↑总平图
至于价格参考,项目所在地块土地成交单价5820元/㎡,楼面地价约2425元/㎡;附近在售楼盘主要为建投·上江传奇、远达·长江书院、丽雅·和锦,极少数房源单价“6”字头,大多集中在“7”字头、“8”字头。
这3个纯新盘
位于不同区域,地段都不错
大家觉得以后价格能卖多少?